×
GDPR - Práva a informácie

Keď navštívite ktorúkoľvek webovú stránku, môže ukladať alebo načítať informácie vo vašom prehliadači, väčšinou vo forme cookies. Tieto informácie, ktoré sa môžu týkať vás, vašich preferencií alebo vášho internetového zariadenia (počítača, tabletu alebo mobilného telefónu), sa väčšinou používajú na to, aby pracovisko fungovalo tak, ako ste očakávali. Viac informácií o tom, ako používame súbory cookie na týchto stránkach a zabrániť nastaveniu nepodstatných súborov cookie, môžete získať kliknutím na nižšie uvedené položky. Avšak ak to urobíte, môže to mať vplyv na vaše skúsenosti s webom a službami, ktoré sme schopní ponúknuť.

Interiérové dvere Dre Sara Eco 2 Grunt reverzné otvárané dnu so skrytou zárubňou

  • Zdieľať

Nový produkt

413,00 € s DPH

product description

Skryté dvere DRE SARA ECO 2 s integrovanou zárubňou predstavujú elegantné riešenie, kde dvere a zárubňa tvoria jednotný celok a sú priamo zabudované do steny, ktorá má rovnakú hrúbku ako samotné dvere (40 mm). Tento model umožňuje moderné a kreatívne projektovanie interiéru pomocou dverí, ktoré sú takmer neviditeľné, pričom povrch krídla môže byť prispôsobený farbe steny. Po inštalácii hliníková zárubňa nie je viditeľná, zvyšuje sa tak dojem plynulého prechodu medzi stenou a dverami, pričom jediným viditeľným prvkom je jemný spoj.


Povrchová úprava dverí Grunt - určené na maľovanie a tapetovanie.

V štandardnom prevedení sú dvere dodávané s dvoma pántami a výplňou z voštiny. Za príplatok je možné dvere dodať aj s tromi pántami, pričom výplň bude pozostávať z dierovanej drevotriesky.

Dvere sa dodávajú bez spodného výfrezu na kľúč.

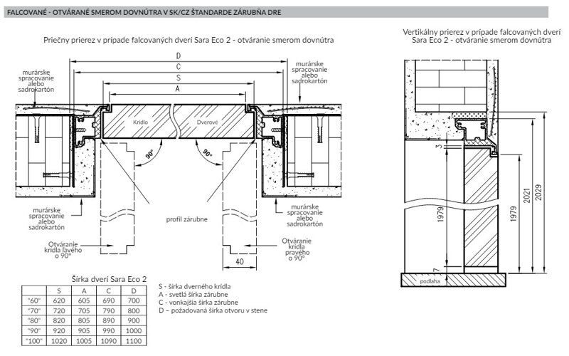
Stavebné rozmery pre SK normu nájdete tu.


Vlastnosti produktu:
Orientácia    * Povinné
Ľavé reverzné
 
Ľavé reverzné
 
Pravé reverzné
 
Pravé reverzné
 
Šírka dverí    * Povinné
Skrytá zárubňa Aluminium    * Povinné
Skrytá zárubňa Aluminium
 
Skrytá zárubňa Aluminium
Príplatky
 
Výplň dierovaná drevotrieska DTD
[+ 33,33 €]
Poznámka
Správa 
 
TOP
TOP
ikona banneru EXTRA ZĽAVA - 10%